Le compte-rendu du conseil municipal du 16 décembre est disponible : Compte-rendu du 13 janvier 2021
Auteur/autrice : Mairie
Haute Touche : Travaux de sécurisation du réseau électrique
Dans le secteur de la Haute Touche, l’entreprise VEZIE, mandatée par le SDE35, réalisera des travaux de sécurisation du réseau électrique basse tension (Effacement de réseaux aériens, suppression des pilonnes électriques…).
Ordre du jour du conseil municipal du 13 Janvier 2021
Le prochain conseil municipal aura lieu le mercredi 13 janvier 2021 à 20h00 dans la salle Jacques-Jérôme Fontaine.
La Feuille – Janvier 2021
Peut-être déjà dans votre boîte aux lettres ou en cours de distribution, retrouvez La Feuille juste ici La Feuille – Janvier 2021
Aide au logement pour les salariés et ex-salariés
Une information d’Action Logement concernant l’aide au logement à destination des salariés et ex-salariés.
SNCF : Accueil client à la halte de Saint-Médard-Sur-Ille
SNCF Voyageurs et TER BreizhGo organise un point “accueil client” le lundi 18 janvier 2021 de 7h00 à 9h30 à la halte ferroviaire de Saint-Médard-Sur-Ille.
FSL (Fond Solidarité Logement) : Dispositions exceptionnelles
Information concernant l’adoption de dispositions exceptionnelles relatives au FSL dans le cadre de la crise sanitaire applicables jusqu’au 30.06.2021. Pour rappel, il s’agit notamment :
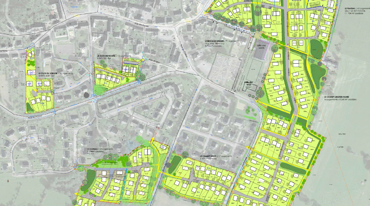
ZAC : Synthèse de la participation du public
Dans la cadre du projet de le ZAC de la Croisée des Chemins; la procédure de Participation du Public par Voie Electronique (PPVE) s’est déroulée du mercredi 4 novembre 2020 au vendredi 4 décembre 2020 inclus.
Voies ferrées : Travaux de nuit du 04 au 30 Janvier
Dans le cadre du plan national de rénovation du réseau, SNCF Réseau a procédé, de nuit, de mai à août 2020, à des travaux de renouvellement des voies ferrées entre les villes de Chevaigné et de Dingé. Il reste à ce jour les travaux de finitions a réaliser avec du ramassage de rail et de […]
Meilleurs Vœux pour 2021 !
Monsieur le maire Noël Bournonville, le conseil municipal, les membres du CCAS ainsi que le personnel communal vous souhaitent une belle année 2021 !
Fermeture exceptionnelle de la mairie
Exceptionnellement la mairie sera fermée les samedis 26 décembre et 2 janvier. Nous vous remercions pour votre compréhension et vous souhaitons, à toutes et à tous, de joyeuses fêtes de fin d’année !
Compte-rendu du conseil municipal du 16 décembre 2020
Le compte-rendu du conseil municipal du 16 décembre est disponible : Compte-rendu du 16 décembre 2020
Le Petit Médardais : Journal du Conseil Municipal des Jeunes
Après des semaines sans pouvoir se réunir et un projet qui ne cesse d’être reporté, le Conseil Municipal des Jeunes rebondit et écrit son journal ! Retrouvez ici le premier numéro du Journal du CMJ : Le Petit Médardais
Il y a un an le Département ouvrait le viaduc à la circulation
Le 12 décembre 2019, le Département, conformément à son engagement, ouvrait à la circulation le viaduc de Saint-Médard-sur-Ille. Avec la suppression du passage à niveau n° 11, cet ouvrage d’art unique en Ille-et-Vilaine permettait la sécurisation de la circulation automobile sur la RD 106.
Ordre du jour du conseil municipal du 16 décembre 2020
Le prochain conseil municipal aura lieu le mercredi 16 décembre 2020 à 20h00 dans la salle Jacques-Jérôme Fontaine.













